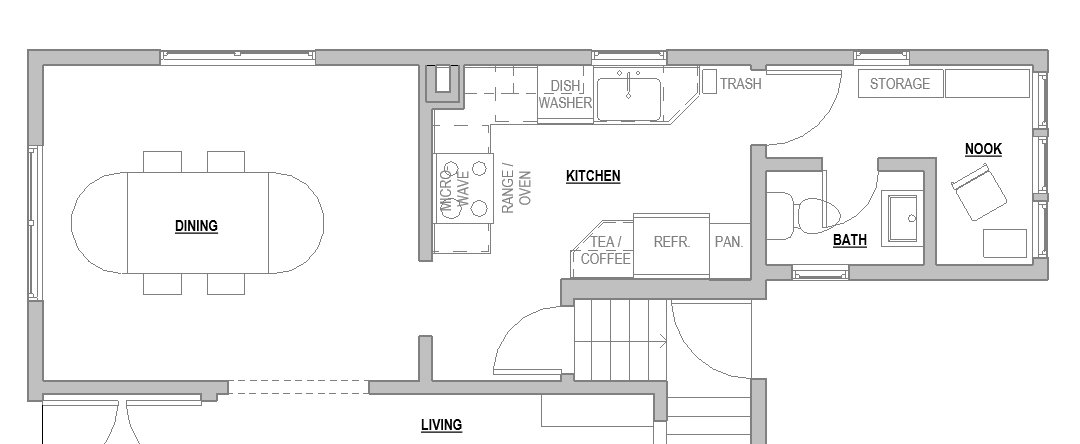
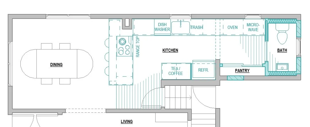
KITCHEN LITTLE

In one the skinniest kitchens we’ve encountered, this home faced a beautiful challenge:
How do you expand space without moving walls?

Considering the finest details of movement, each appliance, counter station, drawer, and shelf optimizes the dance of two (many) cooks in the kitchen. Guests are engaged with their hosts by opening the wall to the dining room, but are restrained from the tight working area at a new peninsula counter.

Collected from years spent in Czechia and Japan, everyday wares of life are the true substance of this home’s beauty. Seeing the untold stories in every object, our goal was to treat them as another material in the kitchen’s design, blurring the boundary of authorship that typically delineates the architect and homeowner.

With the visual weight of upper cabinets out of the picture, hand-crafted details are exposed as a motif that then blurs the boundaries of the room’s constricting walls.